Tiny House 30m²

À partir de 47500€ HT clé en main

Auréa 30m²
La tiny de 30 m² est parfaite pour de la location de vacances en famille. Elle convient pour 3 à 5 personnes. Ce modèle contient deux chambres pouvant accueillir un lit deux places, un lit une place ou deux lits superposés, ainsi qu’un canapé-lit. Peut également convenir à une activité professionnelle.

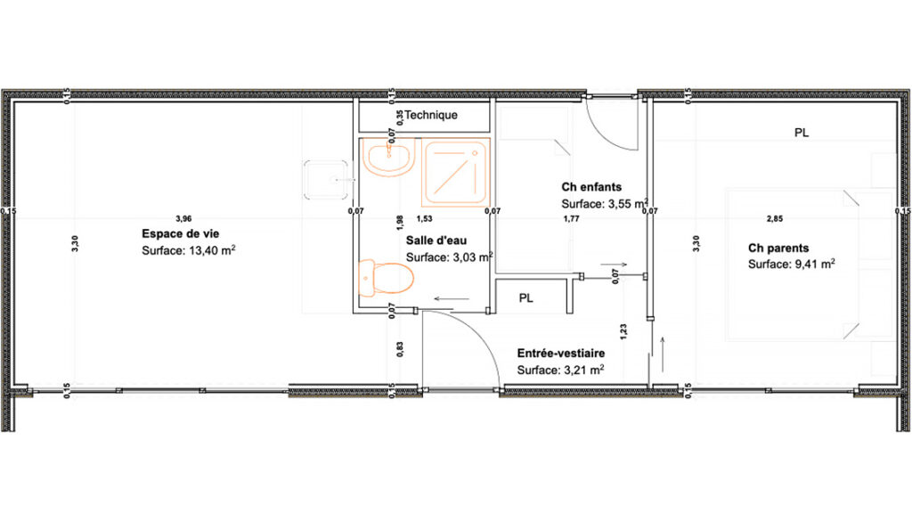
Plan Tiny House 30m²

interieur tiny house 30m2
Plan Tiny House 30m2

Équipements compris

Ossature & Fondations

Ossature en acier. Isolation thermique panneau sandwich respectant les normes RE 2020 Platine de fondation avec pieux d'ancrage et vis de fondation

Mensuieries & Sanitaires

Fenêtres double vitrage, coulissantes, portes et parquet stratifié au sol. Salle de bain complète (douche, vasque, wc) et sanitaires installés.

Cuisine meublée

Meubles, plan de travail, évier

Pompe à chaleur

Climatiseur reversible / Chauffage

Informations Techniques

Dimensions

- Surface : 30m2
- Dimension : 10m X 3m
- Type : Plein pied

Structure & Isolation

- Ossature en acier galvanisé légère et résistante
- Traitement anti-humidité et protection anticorrosion
- Panneau sandwich 100mm
- Isolation performante compatible RE2020
- Résistance thermique (R) conforme aux standards européens

Revêtements & Finitions

- Extérieur : bardage bois ou composite
- Intérieur : murs, panneaux
- Sol : parquet stratifié chocolat ou selon choix client

Électricité

- Alimentation électrique 32A monophasée
- Réseau électrique complet
- Éclairage led
- Sport extérieur

Options sur devis
  • Pack mobilier complet (literie, rangements, table, chaises, canapé..)
  • Électroménager (plaque, frigo, micro-ondes, lave-vaisselle..)
  • Terrasse (bois ou composite)
  • Point d’eau extérieur (douche solaire, robinet)
  • Solutions éco-responsables : panneaux solaires, récupération d’eau de pluie, toilettes sèches
  • Aménagements intérieurs spécifiques : cloisons modulables, dressing, bureau intégré
  • Éclairage extérieur (spots intégrés, appliques murales)
 
Peut-être également livré nu pour les activités professionnelles ou avec des équipements spécifiques, suivant vos besoins. N’hésitez pas à nous contacter pour plus d’informations.

FAQ

Il faut compter 3 semaine à un mois pour la fabrication et la livraison d’une tiny house. Compter 1 jour supplémentaire pour la pose.

A detailed answer to provide information about your business, build trust with potential clients, and help convince the visitor that you are a good fit for them.

A detailed answer to provide information about your business, build trust with potential clients, and help convince the visitor that you are a good fit for them.

A detailed answer to provide information about your business, build trust with potential clients, and help convince the visitor that you are a good fit for them.

A detailed answer to provide information about your business, build trust with potential clients, and help convince the visitor that you are a good fit for them.
A detailed answer to provide information about your business, build trust with potential clients, and help convince the visitor that you are a good fit for them.
A detailed answer to provide information about your business, build trust with potential clients, and help convince the visitor that you are a good fit for them.
A detailed answer to provide information about your business, build trust with potential clients, and help convince the visitor that you are a good fit for them.
LES AVANTAGES

ECO

Panneau solaire
100% autonome

MADE IN EUROPE

Fabrication 100% Européenne

CLÉ EN MAIN

Posé chez vous en 1 jours !

GARANTIE

Garantie décennale pendant 10 ans